地址:上海市閔行區疏影路1280號
傳真:021-54883445
郵箱:sales@sansitech.com
夜間或低能見度的情況下,機場目視照明系統可以為飛機提供起飛、降落和滑行提供目視引導(也被稱作助航燈光)。目前,助航燈光主要包括進近燈光系統、精密進近坡度指示系統、跑道燈光系統、滑行道燈光系統及其它燈光系統。本文就進近燈光系統,為大家展開介紹。
1.進近燈光系統
(1)簡易型:
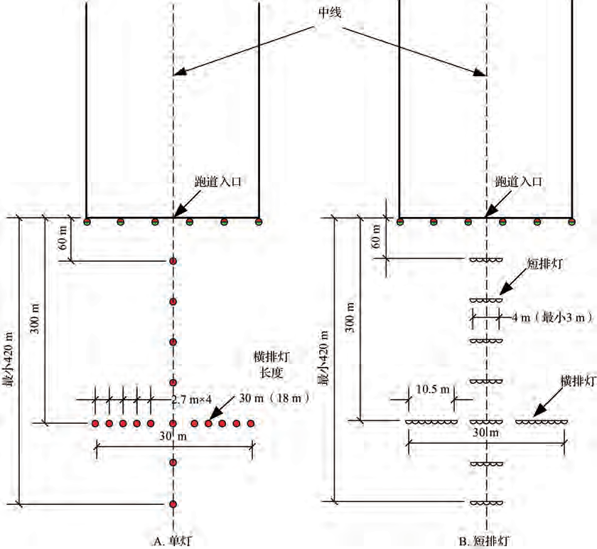
簡易進近燈光系統由一行位于跑道中線延長線上,并盡可能延伸到距跑道入口不小于420m處的燈具,和一排在距跑道入口300m處一個長30m或18m的橫排燈組成,可分為A型簡易進近燈光系統和B型簡易進近燈光系統。

簡易進近燈光系統(中線燈間距為60m的情況)
A型中線燈為一個單燈,B型中線燈為長度不低于3米的短排燈。
A型簡易進近燈光系統采用低光強發紅色光的全向燈具,B型簡易進近燈光系統的中線燈和橫排燈是發可變白光的恒定發光燈。

三思-嵌入式進近側邊燈
(2)I型:
Ⅰ類精密進近燈光系統由以下部分組成:一排位于跑道中線延長線上,延伸至跑道入口900米處的中線燈,以及一排距跑道入口300米處的、長30米的橫排燈。中線燈和橫排燈均為可變白光的恒定發光燈,其中中線燈的縱向間距為30米,通常采用短排燈設計。

三思-機場進近燈光
(3)Ⅱ、Ⅲ類
Ⅱ類和Ⅲ類精密進近燈光系統由以下部分組成:一排燈具位于跑道中線延長線上,盡可能延伸至跑道入口900米處;兩排側邊燈延伸至跑道入口270米處;以及兩排橫排燈,分別位于跑道入口150米和300米處。
側邊燈對稱于跑道中線延長線,發出紅光;橫排燈發出可變白光,屬于恒定發光燈。中線燈的縱向間距為30米,同樣發出可變白光。如果跑道入口內移,道面燈具將采用嵌入式設計。
如今,LED節能光源以其適中的亮度和出色的穿透力,能夠有效提升視覺舒適度,因此非常適合用于機場的目視照明燈具如對機場進近燈光系統感興趣的,歡迎咨詢上海三思。
*本文參考標準:MH 5001-2021 《民用機場飛行區技術標準》